Büroetage mit ca. 198m² im Business-Park Longerich

Büroetage

198,16 m²

9,90 EUR Miete pro Quadratmeter

50739 Köln

  • Fakten
  • Objektbeschreibung
  • Ausstattung
  • Lagebeschreibung
  • Sonstiges

Fakten:

Miet-/Kaufobjekt: Miete
Bürofläche: 198,16 m²
Miete pro m²:   9,90 EUR
Nebenkostenpauschale pro m²:   3,00 EUR
Stromkostenpauschale pro m²:   1,00 EUR
Stellplatz: 50,00 EUR
Objektart: Büroetage
Verfügbar ab: nach Absprache
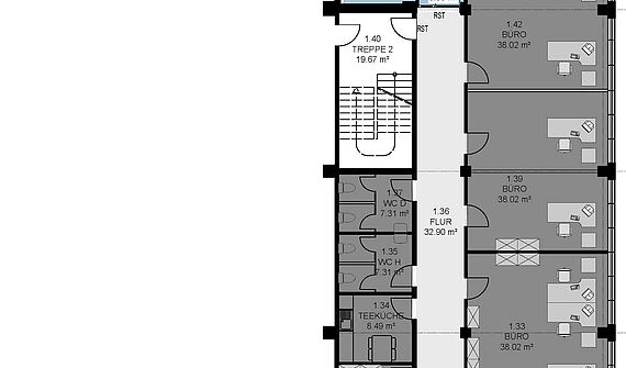
Etage(n): 1. Obergeschoss
Objektzustand: Normal
Heizungsart: Zentralheizung
wesentliche Energieträger: Gas
DV-Verkabelung vorhanden: Ja
Personenaufzug: Ja
Bodenbelag:

Granit

Fußweg zu Öffentl. Verkehrsmitteln:   1 Min.
Fahrzeit zum nächsten Hauptbahnhof: 20 Min.
Fahrzeit zur nächsten BAB:   5 Min.
Fahrzeit zum nächsten Flughafen: 30 Min.

Objektbeschreibung:

Das 1991/1992 erbaute, moderne dreigeschossige Büro- und Logistikgebäude verfügt über eine Gesamtfläche von 11.503 m².

Der repräsentative Eingangsbereich mit verglastem Treppenhaus, Marmorbelägen und Glasaufzug bietet ein elegantes Entreè.

Ausstattung:

Die helle Büroetage befindet sich im 1.Obergeschoss und verfügt über eine moderne Ausstattung. Die Decke ist abgehangen und mit moderner LED-Beleuchtung ausgestattet. Die gesamte Fläche ist mit einem Granitboden ausgelegt.

Alle Räume verfügen über Kabelkanäle entlang der Fenster und die EDV-Verkabelung ist in CAT7 installiert und im Serverraum zusammengeführt.

Lagebeschreibung:

Das Gewerbegebiet befindet sich im Kölner Norden im Stadteil Longerich, in unmittelbarer Nähe zur A57 und A1. Der direkte Anschluss an die Militärringstraße und die Äußere Kanalstraße stellt eine hervorragende Verbindung zu allen Kölner Stadtteilen dar.

Sonstiges:

PROVISIONSFREI

Objekt: Robert-Perthel-Straße 79 in 50739 Köln

 

Nebenkostenpauschale 3,00 €/m²

Die Nebenkostenpauschale beinhaltet sämtliche Betriebskosten wie:

Heizkosten, Wasser, Abwasser, Grundsteuer Straßenreinigung, Gebäudeversicherung, Müllabfuhr, Aufzug, Hausmeister, Wartungen, Hausreinigung etc.. .

Stromkostenpauschale 1,00 €/m² beinhaltet den kompletten Verbrauchsstrom der Etage.

Dokumente